Accesorios para Tanques Verticales API STD 650 - Placa de Identificación y Placas de Aterramiento
Ing. José Félix Acevedo B.
9/27/20254 min leer
1. Introducción
En los tanques de almacenamiento construidos bajo la norma API Standard 650 – Welded Tanks for Oil Storage, además de los componentes estructurales principales (fondo, pared y techo), se requieren accesorios complementarios que aseguren la operación segura, confiable y normativamente conforme del equipo.
Dentro de estos accesorios destacan:
Las placas de identificación, que proporcionan la información técnica esencial del tanque y permiten su trazabilidad a lo largo de su vida útil.
Las placas de aterramiento, que cumplen un rol fundamental en la protección contra descargas electrostáticas, integrando el tanque al sistema de puesta a tierra de la planta.
Ambos elementos, aunque sencillos en apariencia, resultan críticos para el cumplimiento normativo, la seguridad operativa y la confiabilidad de la instalación.
2. Placas de Identificación (Nameplates)
2.1 ¿Qué son y para qué se usan?
Las placas de identificación son elementos metálicos permanentes fijados al tanque, que contienen la información esencial de diseño, fabricación y certificación. Su función principal es proporcionar trazabilidad y cumplimiento normativo, actuando como la “cédula de identidad” del tanque.
2.2 Información obligatoria (API 650, Sección 10.1.1)
Anexo: El anexo aplicable (E, F, G, etc.).
Año de Finalización: El año en que se completó el tanque.
Diámetro Nominal: Diámetro (m o pies).
Altura Nominal: Altura de la pared (m o pies).
Capacidad Máxima: Capacidad del tanque al nivel máximo de líquido de diseño (m³ o bbl). Ver Fig. 1.
Nivel de Líquido de Diseño: Nivel o altura utilizado para el cálculo (m o pies).
Gravedad Específica de Diseño: Gravedad específica utilizada para el cálculo.
Temperatura de Diseño del Metal: La temperatura más baja considerada en el diseño (grados Celsius o grados Fahrenheit). Véase API pár. 3.8.
Presión de Diseño: Que se mostrará como "Atmosférica" a menos que apliquen los anexos F y/o V (kPa, mm c.a., psi, pulgadas de c.a.). Véase API 650 pár. 10.1.1.i
Temperatura Máxima de Diseño: Temperatura máxima utilizada para el cálculo (grados Celsius o grados Fahrenheit)
Número de Serie del Fabricante: Número de serie del fabricante o número de contrato
Alivio de Tensión: Condiciones de tratamiento térmico posterior a la soldadura (PWHT). Véase API 650 pár. 10.1.1.n.
Factor de Comb. de Pres. Int.: Relación entre la presión interna de funcionamiento normal y la presión interna de diseño, con un valor mínimo de 0,4. Vea párrafo 5.2.2 de la API 650
Número de tanque del comprador: Número del tanque.
Factor de Comb. de Pres. Ext: Relación entre la presión externa de funcionamiento normal y la presión externa de diseño, con un valor mínimo de 0,4. Vea párrafo 5.2.2 de la API 650
Fabricado Por: Nombre de la empresa fabricante
Erigido Por: Nombre de la empresa constructora
Anillo / Material de la Pared: Muestre el número del anillo de pared y el material de la plancha de la pared.


Placa de Identificación.


Figura 1
2.3 Ubicación e instalación
Por lo general, se coloca en el primer anillo de la pared, cerca de una boca de inspección, o en la plancha de refuerzo inmediatamente encima de la boca de inspección.
Fijación mediante soldadura, remaches o atornillado permanente.
Deben fabricarse en materiales resistentes a la corrosión, para garantizar legibilidad durante toda la vida útil del tanque.
2.4 Importancia
Permiten identificar inequívocamente el tanque y verificar que cumple con API 650.
Referencia indispensable para inspecciones, auditorías y mantenimiento.
En emergencias, brindan información crítica de capacidad, presión y temperatura de diseño.
3. Placas de Aterramiento (Grounding Lugs)
3.1 ¿Qué son y para qué se usan?
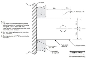
Son placas metálicas soldadas a la plancha inferior del tanque, utilizadas para la conexión a tierra (grounding). Su objetivo es disipar cargas eléctricas estáticas, evitando acumulaciones que puedan generar chispas o igniciones durante operaciones de llenado, vaciado o mezclado.


Placa de Aterramiento.
3.2 Cantidad mínima requerida
API 650 establece que la cantidad mínima debe ser especificada por el comprador.
Como práctica recomendada:
o 2 placas para tanques pequeños.
o 4 placas para tanques medianos.
o 6 o más para tanques de gran diámetro.
El número final depende del diámetro del tanque y de la resistencia del sistema de puesta a tierra (generalmente < 10 ohm, según NFPA 77).
Espacio máximo sugerido entre placas de aterramiento es de 30 m (100 pies)
3.3 Materiales y detalles constructivos
Fabricado en acero inoxidable para tanques de acero al carbono o aleación de acero con bajo contenido de carbono. Si están unidos a otros materiales, el material de la orejeta debe ser similar al material al que están unidos.
Dimensiones típicas:
o Ancho: 65 mm.
o Largo: 100 mm (Puede ser mayor. agregar espesor de aislamiento térmico en tanques aislados).
o Espesor: 6 mm.
Equipado con orificios perforados o roscados para cables de cobre o correas de conexión a tierra.
En tanques de acero al carbono o tanques de aleación de acero con bajo contenido de carbono, se recomienda instalar una placa de refuerzo entre la placa de carcasa y la lengüeta de puesta a tierra.
3.4 Ubicación e instalación
Se sueldan en el primer anillo de la pared del tanque, cercanas al fondo.
Distribuidas uniformemente alrededor de la circunferencia.
El punto de conexión debe ser accesible desde el exterior.
3.5 Importancia
Garantizan la seguridad operacional al evitar descargas electrostáticas.
Cumplen con los requisitos de seguridad eléctrica e industrial (API y NFPA).
Aseguran la integración del tanque al sistema general de tierras de la planta.
4. Conclusiones
Las placas de identificación aseguran la trazabilidad y conformidad normativa, mientras que las placas de aterramiento garantizan la seguridad eléctrica y contra incendios. Ambos accesorios, aunque sencillos en apariencia, son críticos para la operación segura y regulada de un tanque de almacenamiento bajo API 650.
Detalles
INGENIERÍA
info@aceinteca.com
WhatsApp +58 416 6289796
© 2024. All rights reserved.
Información técnica sobre equipos para tanques cortesía de World Bridge Industrial Co. Ltd.
Información técnica sobre dispositivos de protección de tanques cortesía de Korea Steel Power Corp
Información técnica sobre tanques atornillados cortesía de Center Enamel
Escaleras Rodantes para Techos Flotantes
Techos Suspendidos pra tanqeus Refrigerados
Accesorios para Tanques Atornillados
